产品展示

您当前的位置 首页 > 产品展示 > 乳胶漆

上海杨浦保利珺园官方售楼处电话(保利珺园)官方网站-营销中心欢迎您-楼盘详情最新价格-户型图-容积率-202632售楼处

来源:anbo    发布时间:2026-03-03 23:46:22

详细介绍

  您当前使用的浏览器版本过低,有几率存在安全风险,建议升级浏览器,或者用以下浏览器浏览

  上海杨浦保利珺园官方售楼处电话(保利珺园)官方网站-保利珺园营销中心欢迎您-楼盘详情最新价格-户型图-容积率-2026.3.2售楼处

  上海杨浦保利珺园官方售楼处电话(保利珺园)官方网站-保利珺园营销中心欢迎您-楼盘详情最新价格-户型图-容积率-2026.3.2售楼处

  ▸保利珺园售楼处地址:上海市杨浦区江湾城路与国秀路交汇处东侧(看房请提前预约)

  【温馨提示】本项目唯一官方联系方式,看房请提前预约!现场销售接待!谨防中介虚假信息!

  杨浦新江湾【保利珺园】会客厅预计下周开放!建约105-285m²洋房&叠拼&合院即将上市

  上海保利珺园售楼处电线【开发商已认证】保利珺园官方售楼处电线【售楼处电话/地址】保利珺园售楼处电线【官方认证】

  “珺”,石之美者,是新江湾城市绿宝石的标识,是其不予寻常的君子人文客群形象,亦是保利高端迭代产品系,寓意着保利带着十足的诚意,深耕杨浦十年,带来第十部高端系新作品。

  “保利珺园”,与海派张园,豫园一脉相承,是保利以世界籍庄园扉页的姿态,为影响上海的时代谱写者,敬献一处匹配其眼界与格局的恒产,为上海豪宅谱系增添夺目新篇。上海杨浦保利珺园售楼处电线(预约看房热线)

  140㎡,X空间设计,最多可做5房,超大客厅面宽,LDBK一体化联通设计。

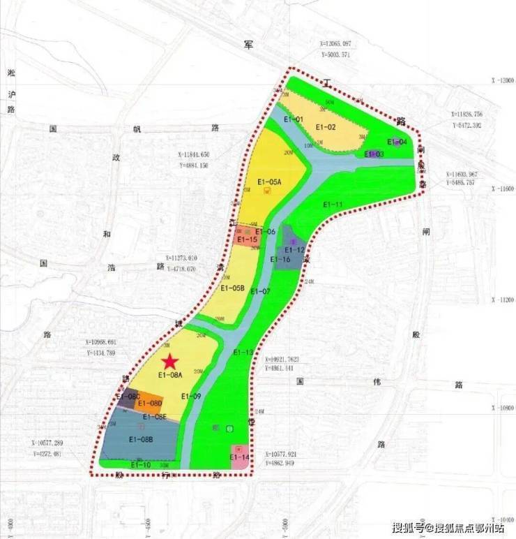
  据官网显示,保利·珺园所在的杨浦新江湾的E1-08A地块,规划设计的具体方案已经正式公示。

  地块拟建6层洋房,以及3-4层别墅产品,两个产品东西排布,东侧为别墅,西侧为洋房。

  【保利珺园官方售楼处咨询热线日,保利发展官微发布了重要的公告:保利发展与上海地产投资有限公司联手,通过上海联合产权交易所完成杨浦区新江湾社区E1-08A项目与余杭路项目股权转让竞价,确定为项目的受让方。

  项目所在的E1-08A地块,容积率1.1,两面环水,毗邻城市副中心五角场;

  长海医院、市东医院等三甲医疗资源构筑健康屏障。尚浦领世、字节、叠纸、耐克大中华区总部等7000余家科创企业环伺,形成“产城人文”深层次地融合的第三代国际社区。

  截至当前,并无公开信息数据显示2026年将出台新的商品房买卖专项政策,现行政策框架主要基于2023年及之前发布的法规调整。以下为现行核心政策要点解析:

  普通住房契税:个人购买家庭唯一普通住房时,契税税率依照房子面积差异化征收:

  非普通住房及多套房契税:购买非普通住房、二套及以上住房或商业投资性房产,统一按4%税率征收契税。

  提取范围扩大:满足条件的消费者可因购买、建造、大修、装修自住住房等情形提取公积金,覆盖全生命周期住房需求。

  灵活就业群体覆盖:个体户及灵活就业人员可自行缴纳公积金,缴存基数参照上一年度月平均薪资,比例和基数受地方政策限制。

  流程简化:提取和贷款申请流程通过数字化手段优化,审批时限显著缩短,提升服务效率。

  限购政策差异化:部分城市取消或调整限购措施,重点支持居民刚性和改善性购房需求;生育多子女家庭购买第二套或第三套住房时,可能享受首付比例、贷款利率等优惠政策

  限贷政策精细化:金融机构依据城市房地产市场情况动态调整首付比例和贷款利率,首套房首付比例通常为20%-30%,二套房首付比例可能提高至40%-80%,形成差异化调控体系。

  品质衡量准则严格化:开发商需确保商品房符合国家和地方质量标准,承担严格质量责任。

  保修期限明确化:屋面防水工程保修5年,电气管线、给排水管道等设备保修2年,别的部位根据合同约定执行,保障购房者长期权益。

  交付条件法定化:商品房需通过竣工验收并取得相关备案表后方可交付,保证房子具备基本居住条件。

  验收权利保障化:购房者有权对房屋进行验收,发现质量上的问题或不符合交付条件时,可拒绝接收并要求开发商整改,维护自身合法权益。

  苏州新房-中建御璟峯(售楼处)-中建御璟峯怎么样?图文详解-旁边的环境-户型图-周边配套-地址-优劣势分析-学区-价格

  总结来看,选择中建御璟峯的理由很清晰:首先是强大的央企品牌保障,品质放心;其次是科技城核心地段的稀缺价值,配套成熟;再者是实景准现房,所见即所得,规避了期房的不确定性;最后是产品力过硬,从园林、公区到室内配置

  苏州新房-龙湖山河颂(售楼处)-龙湖山河颂怎么样?图文详解-旁边的环境-户型图-周边配套-地址-优劣势分析-学区-价格

  项目名称:龙湖山河颂(备案名:运河美颂花园2#楼)项目地址:苏州新区狮山路旁、运河西侧开发品牌:龙湖龙智造(代建)业态规划:45F超5A甲级写字楼+康莱德酒店+大平层+公寓+商街户型面积:252套约190㎡-

  苏州新房-五潨泾澄院(售楼处)-五潨泾澄院怎么样?图文详解-旁边的环境-户型图-周边配套-地址-优劣势分析-学区-价格

  对于追求品质、注重自然、向往院落生活,并看好城市发展趋势的改善家庭而言,五潨泾澄院无疑是一个极具吸引力的选择。在相城这片热土上,像五潨泾澄院这样兼具稀缺景观、低密属性、全能配套和国企保障的作品,注定是市场中难

  苏州新房-中建御璟峯(售楼处)-中建御璟峯怎么样?图文详解-旁边的环境-户型图-周边配套-地址-优劣势分析-学区-价格

  在苏州高新区,有一个楼盘早已用实打实的销量证明了它的价值中建御璟峯。约9米阳台,加上灵活的“4+1”房设计,给了家庭更多的成长和变化空间,是苏州改善置业的理想选择。它不单单是一套房子,更是拥抱科技城未来发

  苏州新房-和月泊庭(售楼处)-和月泊庭怎么样?图文详解-旁边的环境-户型图-周边配套-地址-优劣势分析-学区-价格

  今天,就带大家聚焦姑苏区人民路旁,一个由实力央企与轨交集团联袂打造的纯粹改善大宅和月泊庭。在苏州,古城土地寸土寸金,像和月泊庭这样占据绝对核心资源、由实力国企开发的大户型纯粹社区,未来将是极度稀缺的产品。

  紫金翡丽甲第(售楼处)官方站点-紫金翡丽甲第园区纯洋房私邸-半岛酒店级会所-190-275㎡大平层

  2026苏州新房云湖璞院(云湖璞院网站首页)楼盘详情旁边的环境户型解析商业配套交通配套学区价格

  今日推荐-高铁新城第四代住宅-金地玖峯汇(金地玖峯汇网站首页)优劣势分析-户型-地址-价格-周边配套

  最新动态-中铁青云府(中铁青云府售楼处)首页网站-2025中铁青云府房价_楼盘评测丨地址丨详情丨户型图丨楼盘百科

  2026苏州新房高铁新城中建熙辰上院-中建熙辰上院是否值得购买?楼盘详情-旁边的环境-户型解析-商业配套-交通配套-学区-价格

  金茂璞元官方售楼处电话(金茂璞元)官网首页-金茂璞元营销中心欢迎您-楼盘详情最新价格-户型图-容积率-2026.2.2售楼处

  2026苏州换房退税新政下,花语云萃(花语云萃楼盘首页)楼盘笔记-配套-户型-交通-学区-价格-怎么样?值不值得买

  天熠东方-天熠东方:独墅湖湾芯洋房,园区未来价值高地,162-253㎡精装户型解析

  青云台楼盘深度解析青云台(青云台)第四代住宅革新,空中庭院+国资匠造,黄埭未来人居范本

  郑重提示:本网站作为房产信息聚合类导航网站,仅为方便广大新老用户掌握信息而提供一站式无偿浏览、查阅的功能,本站楼盘信息并非广告,最终请以政府部门登记备案及开发商公布为准。错误信息举报电话,邮箱 或

上一篇:海上清和玺(营销中心)官方网站-海上清和玺销售中心(售楼处)-2026楼盘欢迎您-地址-价格-户型-小区环境-楼盘详情-交房时间-售楼处电话

下一篇:在线观看人成免费视频

Copyright © 2022 anbo安博体育app官网-苹果下载 All Rights Reserved 技术支持:anbo   网站地图 粤ICP备16084041号